CLARKSVILLE, TN (CLARKSVILLE NOW) – Clarksville Mayor Joe Pitts and Mayor Pro Tem Wanda Smith unveiled preliminary plans for the future of Frosty Morn at a community meeting Tuesday at Burt Cobb Community Center.
The Frosty Morn building, a meat packing factory that was in operation from 1948 to 1977, sat empty for decades until a partnership between the City of Clarksville, the American Institute of Architects and the Mayor’s Innovation Project provided an avenue to repurpose the structure as a community space.
“We will get hundreds of thousands of dollars in support for this project. Not money that will go into the construction, but that will help us with the design that will make this one of the leading projects in the nation for sustainability, because we want this to be iconic.”
Wanda Smith told attendees that it is high-time Clarksville move forward with restoring this “diamond in the rough.”
The city began demolishing unusable sections of the building in Aug. 2020, and has moved on to the design phase. They recently distributed a survey to city residents to learn people would like to see in the new space.
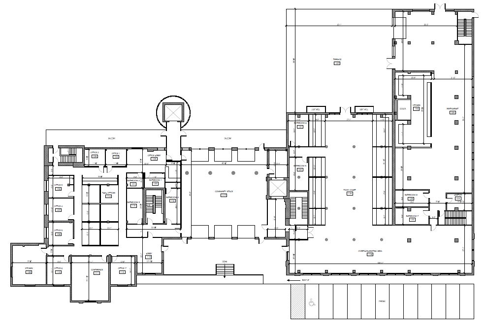
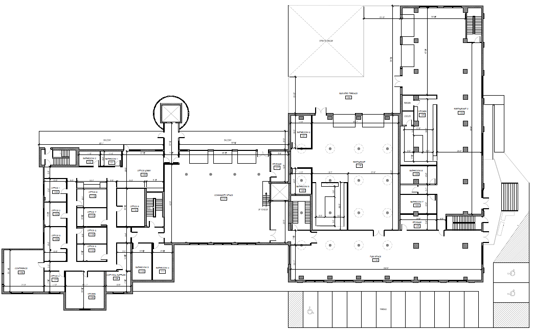
What to expect
At Tuesday’s meeting, Smith said that based on the survey, two of the most popular ideas for the Frosty Morn complex were a new home for the downtown farmer’s market and a space for food trucks to gather.
Some other ideas mentioned were restaurant and bar spaces, retail locations, event and concert rental space, classrooms as well as a commercial kitchen. Green space and a connection to the Clarksville Greenway were also suggested.
Pitts stressed that little of the project is set in stone, and further community input is needed to decide the future of Frosty Morn.
“Tonight is about you telling us what you envision,” Pitts said. “You see these renderings and think ‘You’ve already decided what you’re going to do,’ but these are just seeds we’re planting, just possibilities of what we could do. We want to hear from you as to what this project can be.”
What’s in a name?
Some former Frosty Morn employees attended the meeting, including Frank Principe, who worked there in the 1960s.
Principe is hopeful for the future of the building, but said it was important that the name “Frosty Morn” stay attached to the building.
“I just hope they don’t change the name of the center. It should be the Frosty Morn Center come hell or high water, that’s what it should be. You got thousands of people that worked there. Frosty Morn provided a lot of jobs,” Principe said. “That was the only place back in the ’60s where you could find a job. It put food on the table.”
When asked about the name, Smith said she understood those concerns, but also thought the building could use a fresh start after so many years of vacancy. She suggested “Red River Center” as one possibility.
Pitts did say the Frosty Morn smokestack, torn down in August 2020 due to safety concerns, will be restored to the building with the Frosty Morn down the side.
“We will restore, actually replace, the smokestack that will be a replica of what was there, just because that’s how people in the community know the Frosty Morn building,” Pitts said.
Another round of surveys
With their initial survey concluded, Pitts announced a second round of surveys to further home in on what the Frosty Morn project should include.
The new survey asks residents to choose from groups of projects to show which ones they prefer. The final question allows individuals to write in ideas.
The new survey is expected to be live online next week, along with visual design examples, according to city spokesperson Henry Kilpatrick.
